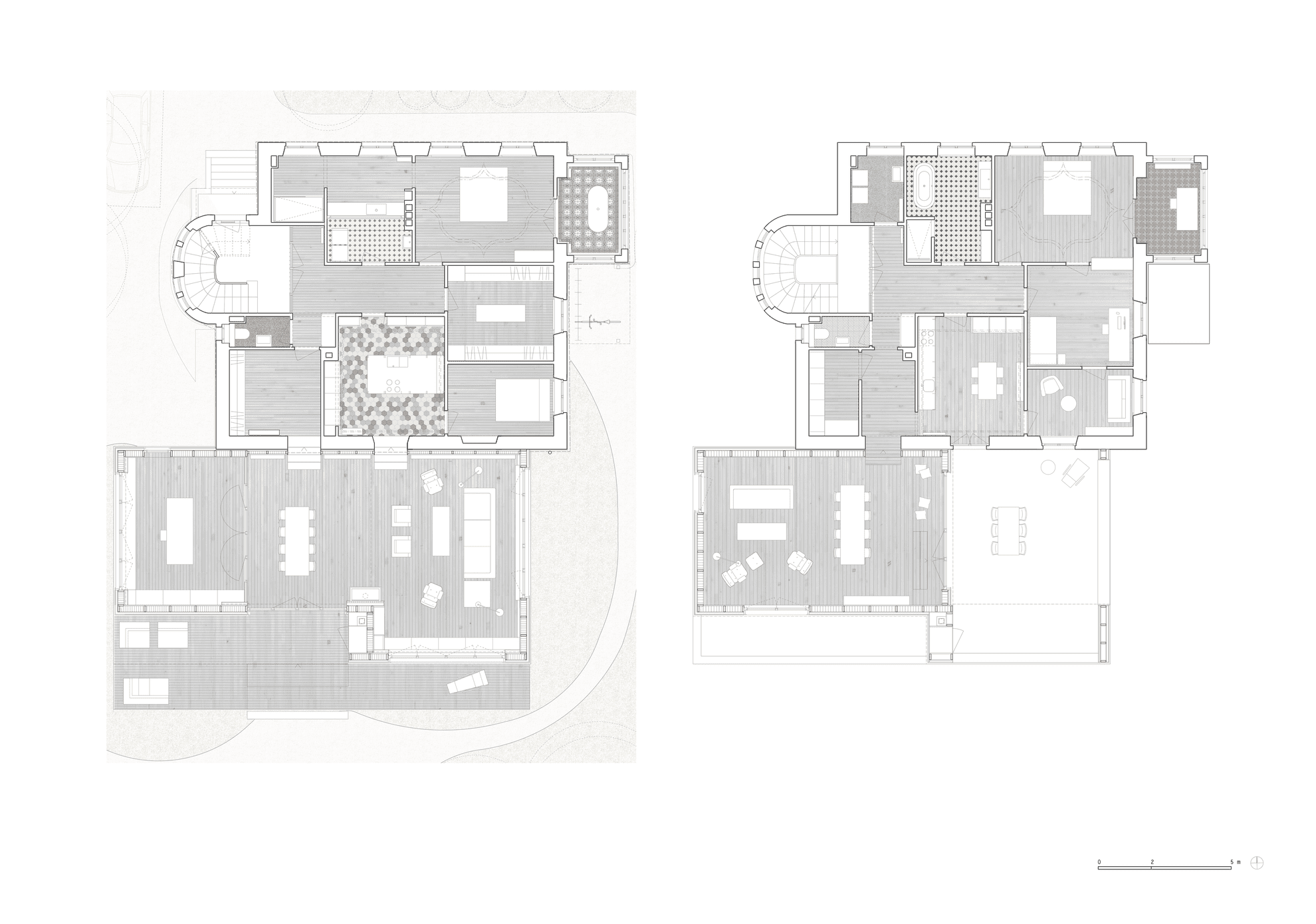
Eine Stadtvilla mit drei Wohnungen aus der Gründerzeit wird mit einer zweigeschossigen Erweiterung versehen. Das Grundstück liegt inmitten der Stadt Zürich in einer Art grünen, undichten Gartenstadt, dem Allenmoosquartier. Das bestehende Gebäude ist in einer ausgewogenen, reichen und expliziten Architektur des frühen 20. Jahrhunderts gehalten und sollte in seiner Form erhalten werden. Der Anbau nimmt im Grundriss zwar ähnliche Dimensionen an wie die bestehende Stadtvilla, ordnet sich volumetrisch aber unter. Die Formulierung als Pavillon verdeutlicht seinen Status als Annexbau und verweist auf seine Lage im villenartigen Garten. Der Ausdruck und seine Form verleihen dem Neubauteil eine hohe Autonomie. Über eine gewisse explizite Formulierung der Öffnungen, Boden- und Dachanschlüsse sowie die plastische Ausbildung der Wandteile wird eine Verbindung zum Altbau mit nicht primär formalen Mitteln geschaffen. Die Öffnungen mit spezifischen Proportionen verweisen in ihrer Lage und Ausrichtung auf die Umgebung, formulieren Ausblicke und nehmen mit ihrer Unterteilung Themen des Altbaus auf. Eine sägerohe, gestrichene Schalung in differenzierten Ebenen baut eine feine Plastizität auf und nimmt mit den Blechabschlüssen die explizite Architektur der Stadtvilla auf. Die Wohnraumerweiterung betrifft primär das Erdgeschoss mit einer zusammenhängenden Raumsequenz von Wohnraum mit einem überhohen Raum, Essraum mit Zugang zum Garten sowie einem Arbeitsraum, der über einen Glasabschluss mit dem Hauptraum verbunden ist. Die räumliche Abfolge im bestehenden Teil wurde leicht verändert, dabei wurden die bestehenden Dimensionen und Zuordnungen respektiert. Die Wohnung im ersten Obergeschoss wurde durch einen Wohnraum und eine grosszügige Terrasse erweitert und mit der sanft umgebauten bestehenden Struktur in Zusammenklang gebracht.