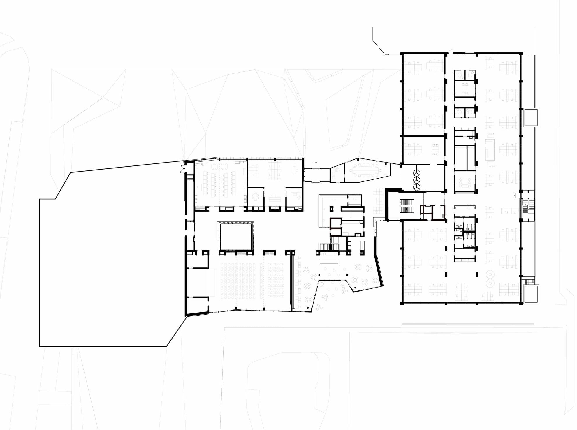
Das Projekt für das Rechenzentrum der Stadt Zürich bildet den ersten Teil der Umwandlung eines abgegrenzten, ehemaligen Industrieareales zu einem gewerb- lich genutzten offenen Stadtteil, dessen Grenzen zum umgebenden Wohnquartier durchlässig sein sollen. Trotz der faktischen Abgeschlossenheit wird die Anlage durch die helle Anmutung der Fassaden mit Feinheiten in Detail und Plastizität zu einem wahrnehmbaren Ort. Das Raumprogramm umfasst Räume für Server, Büros und Betrieb sowie ein Schulungs- und Seminarzentrum. Die unterschiedlichen Nutzungen sind drei Gebäudeteilen zugeordnet: Ein Industriegebäude mit Raumhöhen von 4.50 m und grosser Bautiefe ist zu einer offenen Bürolandschaft umgebaut worden. In einem zweiten Bau sind die Räume für Server und Technik untergebracht. Als Verbindung dieser beiden Gebäude wurde ein Neubau erstellt, welcher die öffentlich zugänglichen Nutzungen birgt.

Der Neubau übernimmt die bestehenden Geschosshöhen mit weit gespannten Hohlkörperdecken. Die vertikale Tragstruktur aus U-förmigen Elementen wirkt raumbildend, indem sie die mittlere Zone des Foyers definiert. Ein grosszügiger Lichthof belichtet diese und verbindet die Geschosse visuell und räumlich. Die gesamte Baumasse wird mit übergreifenden, geknickten Flächen zu einem zusammenhängenden, plastisch wirkenden Volumen verbunden. Die Oberflächen der Fassaden sind umlaufend mit offenen Rohaluminium-Streckblechen versehen. Je nach Blickwinkel wird die dahinter liegende auberginefarbene Verkleidung der Dämmung sichtbar und lässt so das Volumen massiv oder leicht erscheinen. In den Innenräumen wurde die aus Gründen der nachhaltigen Anpassbarkeit geforderte Systemtrennung von Rohbau und Ausbau konsequent als Mittel der Gestaltung eingesetzt und sämtliche Installationen und Akustikmassnahmen sichtbar belassen. Die Architektur reagiert so auf die hohe technische Komplexität mit einer Strategie der konzeptuellen Einfachheit, die eine direkte ästhetische Wirkung erzeugt.