
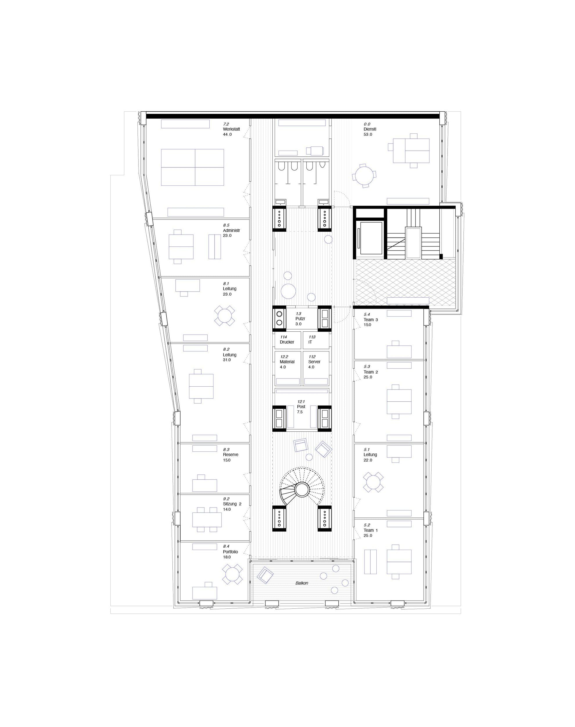
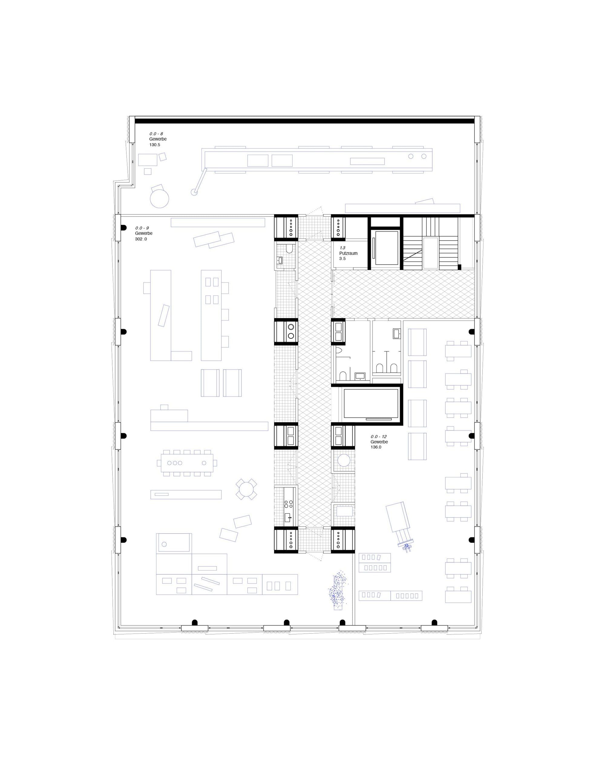
Das Quartier Altstetten liegt seit einiger Zeit im Fokus grosser städtebaulicher Veränderungen im Zuge der Verdichtung der Stadt. Von den Gleisen bis zum Areal Freilager entstehen neue Bauten. Als hohe Qualität bleibt das Gebiet weiterhin polyfunktional, mit einer angemessenen Durchmischung von Wohnen, Gewerbe und Büronutzungen. Neben durchgrünten Wohnabschnitten nehmen grosse, weite Strassenabschnitte begleitende, meist „stumme“ Gebäude den grössten Platz ein. Dazwischen finden sich glücklicherweise einzelne Gebäude als „Überbleibsel“, die zwar klein sind, aber entscheidend für den Charakter des Quartiers: so etwa die Backsteinhalle des Minimum, die Gebäude der F+F, oder auch die aktuell existierende Liegenschaft der Flüelastrasse 16. Diese zeigt einen starken Charakter mit einer ausgeprägten Übereckwirkung. Neben der Präsenz als eigenständiges Gebäude bildet das Haus den Kopf (oder das Ende) einer strassenbegleitenden Häuserzeile, die aus ganz verschiedenen Mitgliedern besteht und dennoch eine wahrnehmbare Einheit bildet.


Aus dieser doppelten Lesbarkeit lassen sich die meisten Eigenheiten des Neubaus erklären: er gibt sich autonom, eigenständig und bleibt dabei Teil der gesamten Zeile. Der Zeile zugewandte Elemente sind etwa das in der Vertikalen erkennbare Treppenhaus und die bewegte Silhouette, die neu interpretiert werden. Sie werden wohl auch bei künftigen Veränderungen der Nachbarn prägend sein. Als prägnantes Ende dieser Zeile zeigt das Volumen klare figurative Eigenschaften mit Rücksprüngen in den oberen Geschossen und aufragenden Elementen im Dachgeschoss. Im Sinne der Einbindung erhält die Fassade eine zurückhaltende, grausilberne Fassade (Eternit und Aluminium), die erst aus der Nähe ihre dünnen, überlappenden Tafeln zeigt. Das Gebäude gibt sich so offen, einladend und zugänglich, solid am Boden stehend und dabei doch fast etwas fragil. Wie ein kleiner Elefant, der dank seinen charakteristischen Eigenheiten sehr gut neben den grossen Tieren rundum bestehen kann.


